
La planta sótano cuenta con un garaje privado con 26 plazas de aparcamiento en venta, además de los apartamentos y el local comercial.

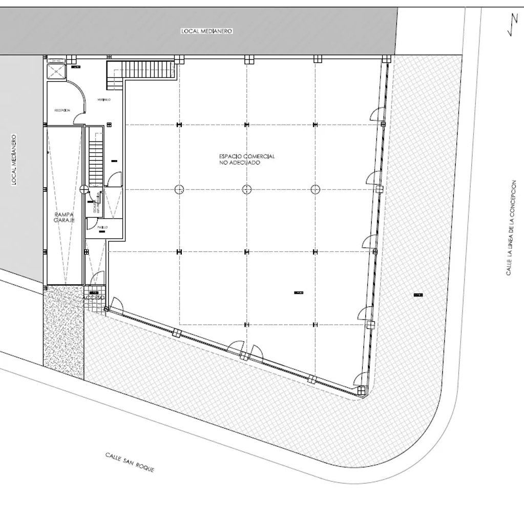
La planta baja cuenta con un espacio que se ofrece para la venta como local comercial pequeño, mediano o completo.

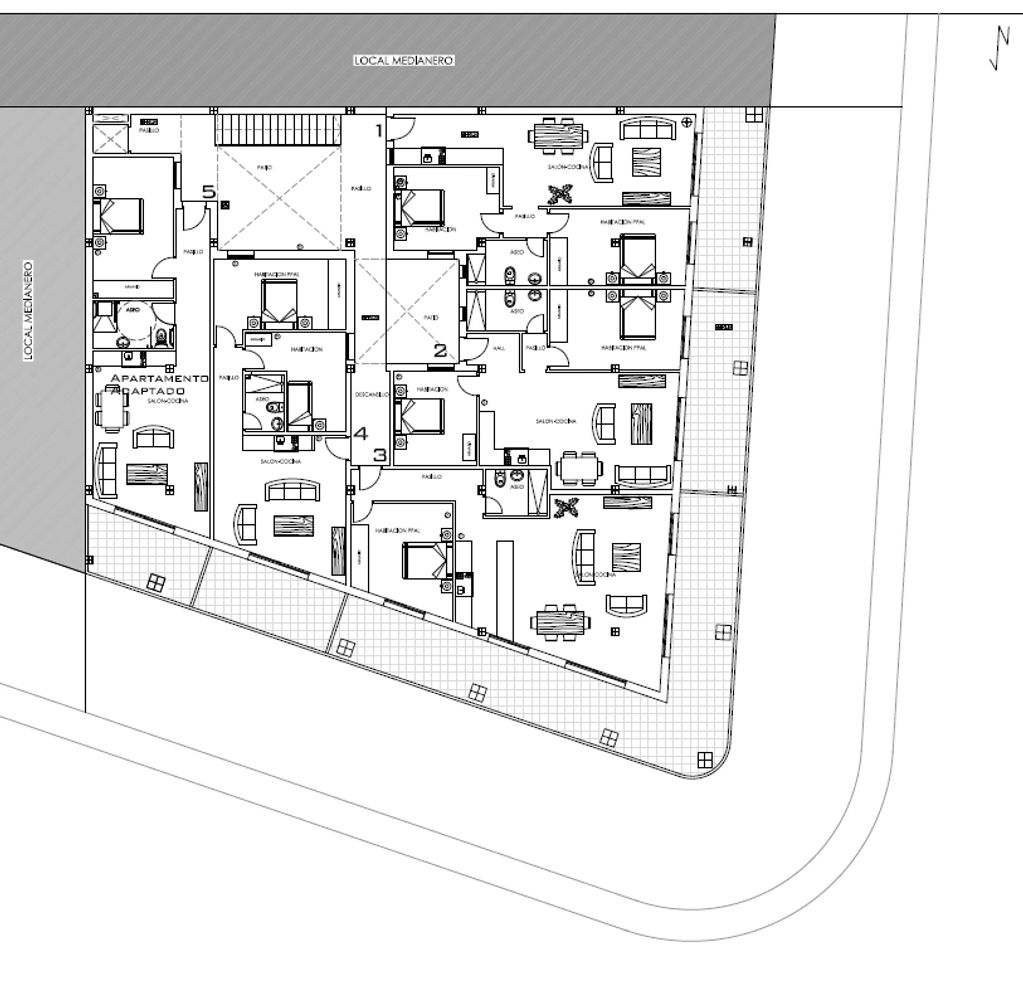
La primera planta alberga cinco apartamentos con cocina. Se accede a ella mediante una escalera independiente ubicada en el vestíbulo de la planta baja o mediante el ascensor.
We use cookies to analyze website traffic and optimize your website experience. By accepting our use of cookies, your data will be aggregated with all other user data.